ENGLISH
繁體中文
虛擬展覽館
公司簡介
關於曄俊
全球據點
在職訓練
專業技術製造、檢驗
產品介紹
最新消息
電子型錄
影片
聯絡我們
油壓折床
CNC油壓折床YCN系列
DA-66T
DA-58T
NC油壓折床
DA-52S
DA-53T
NC-05
油壓折床YCA系列
萬能油壓折床YCU系列
配件
折曲壓力表
油壓剪床
自動化油壓剪床送料集料生產線YCS-F系列
YCS-FR Type
YCS-FA Type
配件
CNC多軸直截式油壓剪床YCS-H系列
YCS-HD Type
NC直截式油壓剪床YCS-H系列
YCS-HA Type
YCS-HM Type
NC搖臂式油壓剪床YCS-S系列
YCS-SM Type
配件
標準配備
選購配備
油壓切角機
油壓成型機
YCT Series
YCT-C (TNC)
YCT-C Series
YCT-CG Series
YCT-H Series
YCT-DS Series
油壓彎鈑機
YCB Series
YCL Series
YCL-S Series
EPB伺服馬達折床
雷射切割機
CNC刨V槽專用機
油壓折床刀具
刀頭
上刀
同心模
四方模系列
單槽底模
底模系列
特殊模具製品
首頁
>
產品介紹
>
油壓剪床
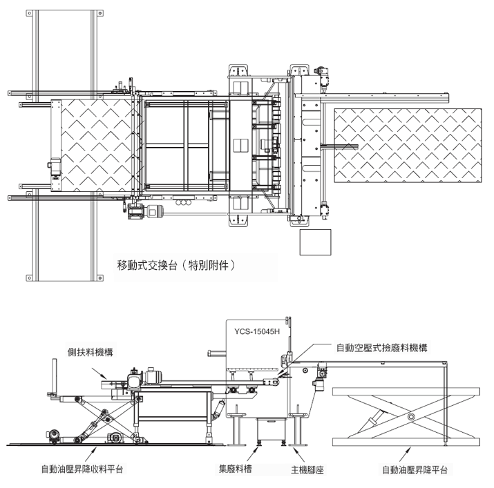
> 自動化油壓剪床送料集料生產線 YCS-F系列 > YCS-FA Type
油壓剪床
自動化油壓剪床送料集料生產線 YCS-F系列
YCS-FA Type
規格
自動油壓昇降平台
自動化集料系統
功能